|
ХАРАКТЕРИСТИКИ |
Изм. |
КОД МОДЕЛИ |
|
EHAP - 4x2500 |
EHAP - 6x2500 |
EHAP - 6x3100 |
EHAP - 8x4100 |
EHAP - 10x3100 |
EHAP - 10x4100 |
EHAP - 12x3100 |
EHAP - 12x4100 |
|
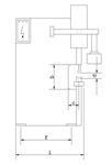
Усилие |
тонн |
60 |
90 |
120 |
200 |
200 |
250 |
250 |
300 |
|
Длина гиба a |
мм |
2500 |
2500 |
3100 |
4100 |
3100 |
4100 |
3100 |
4100 |
|
Высота станка h |
мм |
2220 |
2400 |
2400 |
2600 |
2600 |
2700 |
2700 |
2800 |
|
Вес станка |
кг |
4200 |
5000 |
6500 |
12000 |
9600 |
13000 |
11000 |
14500 |
|
Мощность двигателя |
кВт |
5.5 |
7.5 |
11 |
15 |
15 |
22 |
18.5 |
22 |
|
Толщина листа |
мм |
4 |
6 |
6 |
8 |
10 |
10 |
12 |
12 |
|
Высота горловины b |
мм |
400 |
430 |
430 |
480 |
480 |
500 |
490 |
560 |
|
Глубина горловины c |
мм |
240 |
250 |
270 |
260 |
260 |
335 |
340 |
350 |
|
Ход пуансона d |
мм |
160 |
160 |
160 |
200 |
200 |
220 |
220 |
250 |
|
Расстояние между отверстиями по ширине e |
мм |
2200 |
2210 |
2730 |
3750 |
2750 |
3790 |
2790 |
3800 |
|
Расстояние между отверстиями по глубине f |
мм |
770 |
820 |
835 |
990 |
990 |
1110 |
1110 |
1150 |
|
Расстояние между колоннами g |
мм |
2030 |
2030 |
2530 |
3530 |
2530 |
3530 |
2530 |
3530 |
|
Глубина станка i |
мм |
1200 |
1300 |
1350 |
1600 |
1600 |
1700 |
1700 |
1800 |
|
Ширина станка j |
мм |
2600 |
2600 |
3200 |
4200 |
3200 |
4200 |
3200 |
4200 |
|
Скорость ползуна при холостом ходе |
мм/сек |
80 |
80 |
80 |
80 |
80 |
80 |
80 |
80 |
|
Скорость ползуна при рабочем ходе |
мм/сек |
10 |
10 |
8 |
7 |
7 |
7 |
9 |
7 |
|
Скорость ползуна при возвратном ходе |
мм/сек |
70 |
80 |
72 |
78 |
78 |
57 |
57 |
50 |
|
Скорость вращения двигателя |
об/мин |
1450 |
1450 |
1450 |
1450 |
1450 |
1450 |
1450 |
1450 |